5 699  руб.

Цена указана за 2 шт.

Артикул: ELM5000.07 Категории: ,
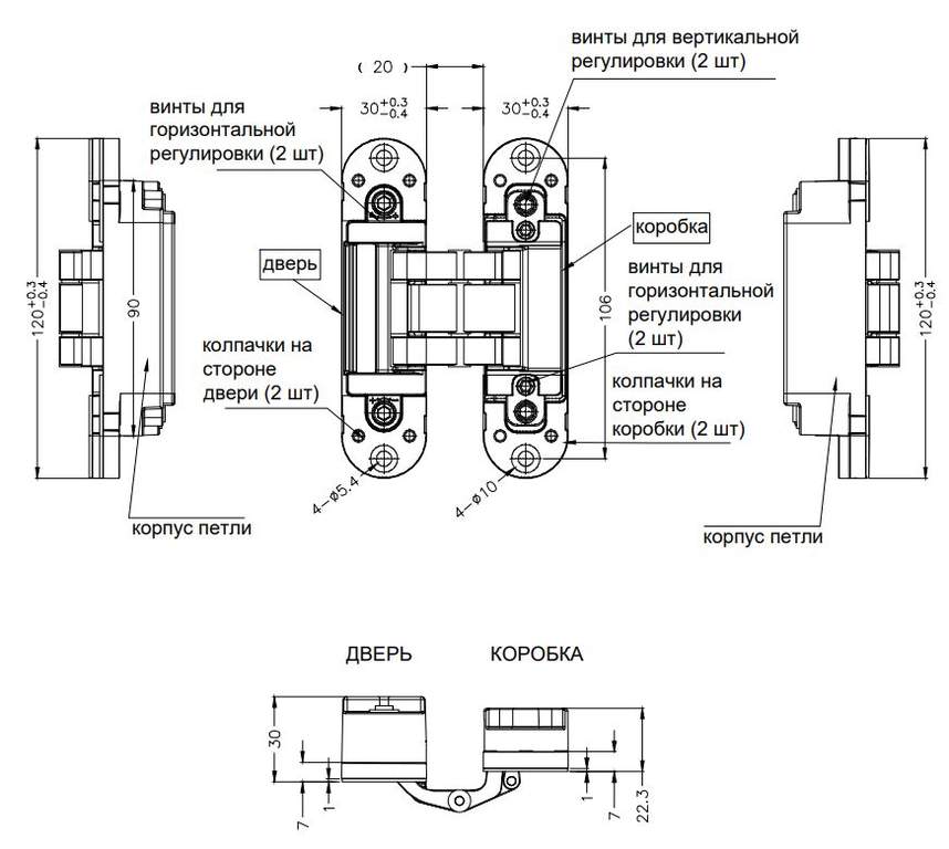
Тип товара

Петля

Цвет

Белый

Материал двери

Дерево

Дизайн петли

Скрытые